Ambientes
6 Ambientes
Superficie
98.61 m²
Baños
1 Baño
Antigüedad
A estrenar
Sobre esta propiedad
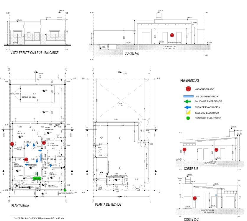
Clínica con 5 consultorios en venta 94 m2 cubiertos es ideal para desarrollar proyectos comerciales (consultorios médicos, psicología, estética, etc). Situado en una zona de alto potencial de desarrollo, este terreno representa una excelente oportunidad de inversión en el corazón de Quilmes, con acceso a una amplia gama de servicios, comercios y transportes, con fácil acceso desde autopista Bs As- La Plata. Medidas: Recepción 5,75m x 3,00m Consultorio 1: 4,00m x 3,53m Consultorio 2: 3,50m x 4,20m Consultorio 3: 2,36m x 4m Consultorio 4: 2,37m x 4m Consultorio 5: 4,00m x 2,36m Patio descubierto 1: 1,33m x 1,70m Patio descubierto 2: 1,80m x 2,37m Consultanos y lo visitamos!!
Balcarce al 300, Quilmes
Qué ofrece este lugar
Alquiler Seguro mob
Contrato y firma 100% online.
Solicitud de visita
Envíamos tu consulta a la inmobiliaria.
Validación por mob
Te verificás y accedés a garantía 50% off para cualquier alquiler.
Tus datos están protegidos por mob
Arocha Propiedades
Inmobiliaria recomendada
Esta inmobiliaria utiliza la infraestructura digital de mob para agilizar tu alquiler.















