Ambientes
1 Ambientes
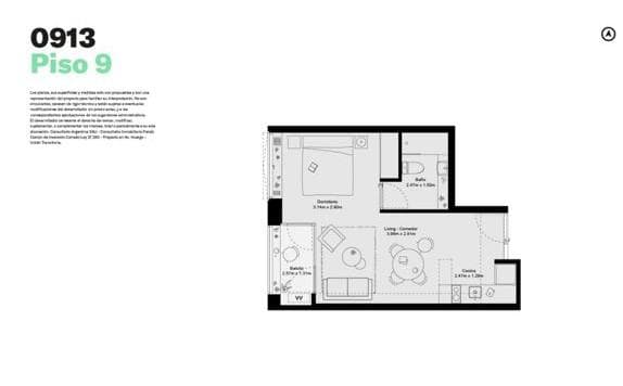
Superficie
36.14 m²
Baños
1 Baño
Antigüedad
A estrenar
Sobre esta propiedad
Departamentos de Lujo en Alquiler — Huergo 475, Puerto MaderoEdificio a Estrenar · Categoría Premium · Amenities de Primer Nivel Descubrí una experiencia de vida única en pleno Puerto Madero, en un edificio tope de gama recién estrenado, con diseño moderno, máxima categoría constructiva y una gama de amenities pensados para el confort y el estilo. Los departamentos ofrecen espacios luminosos, terminaciones de calidad superior y una distribución funcional que combina elegancia y practicidad en cada ambiente. Amenities destacados del edificio: Espectacular piscina con soláriumParrillas totalmente equipadasSUM de diseño para reuniones y eventosGimnasios completos con equipamiento de última generaciónLaundrySeguridad 24 hs y acceso controladoEspacios comunes modernos y cuidados al detalleUbicación inmejorable en una de las zonas más exclusivas de Buenos Aires, con acceso rápido, entorno seguro y vistas privilegiadas. ONE BROKERS | Negocios InmobiliariosMatriculas: 4118 y 7225 CUCICBA.O1NE BROKERS Sociedad Ley 19.550AVISO LEGAL: Las medidas, superficies y proporciones expresadas en el plano son aproximadas y han sido volcadas solo a modo indicativo. Las medidas finales serán las que surjan de la medición en la obra y estarán de acuerdo de los planos aprobados por la autoridad competente. Las unidades presentadas son genéricas y representativas de una unidad tipológica, pudiendo variar tanto en diseño como en medidas.
HUERGO al 400, Puerto Madero
Qué ofrece este lugar
Sin expensas
Alquiler Seguro mob
Contrato y firma 100% online.
Solicitud de visita
Envíamos tu consulta a la inmobiliaria.
Validación por mob
Te verificás y accedés a garantía 50% off para cualquier alquiler.
Tus datos están protegidos por mob
O1NE BROKERS
Inmobiliaria recomendada
Esta inmobiliaria utiliza la infraestructura digital de mob para agilizar tu alquiler.

































