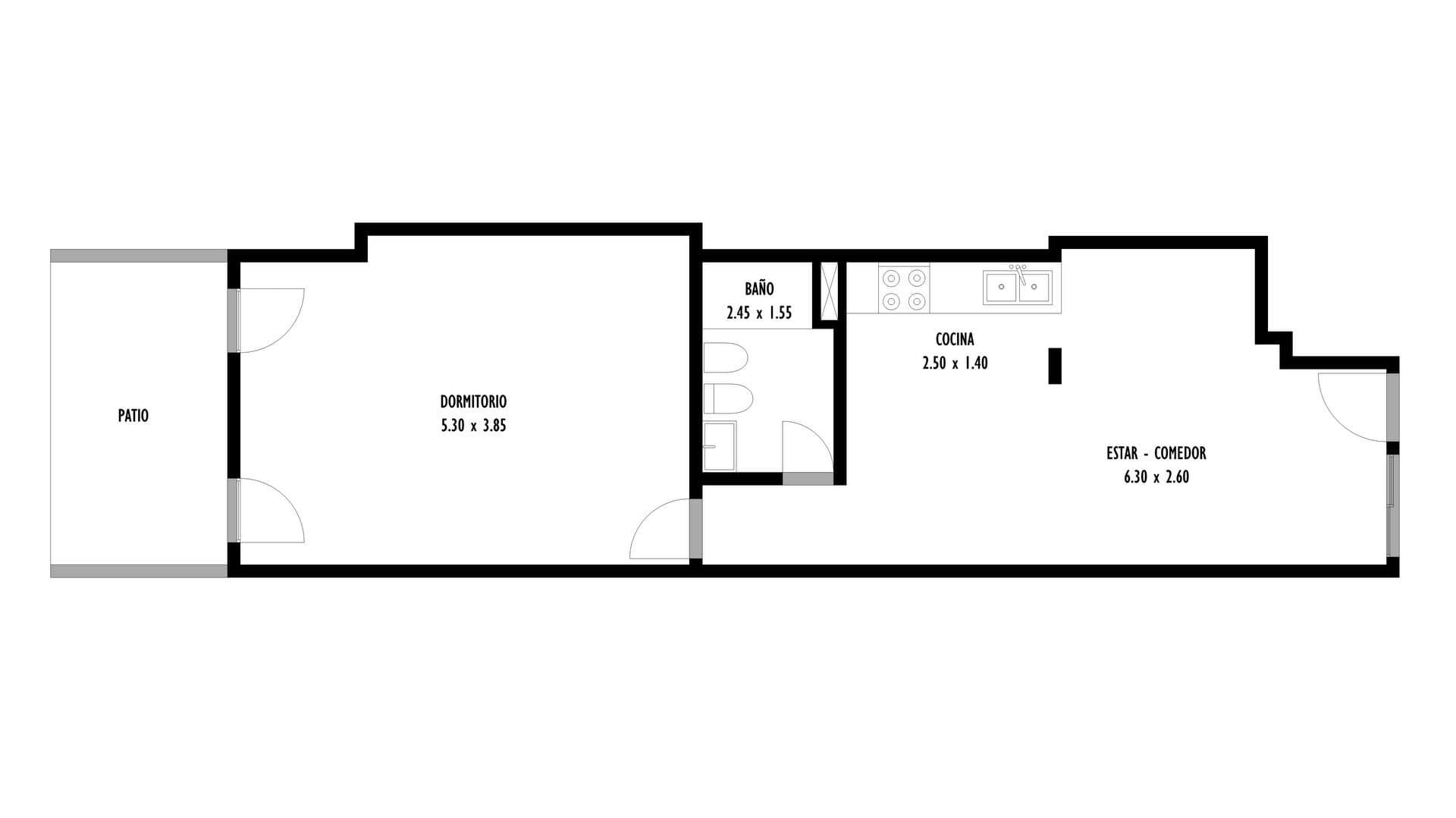
Ambientes
2
Dormitorios
1
Sup. cubierta
40 m²
Baños
1
Antigüedad
35 Años
Sobre esta propiedad
Departamento en alquiler, planta baja con patio al frente. Cuenta con living comedor con cocina integrada, baño completo, dormitorio con palcard y patio con verde. Sin expensas. ABSA $7.977. CONTRATO POR 2 AÑOS, AJUSTE CUATRIMESTRAL ICL. La información gráfica y escrita contenida en el presente aviso es meramente a título estimativo y no forma parte de ningún tipo de documentación contractual. Las medidas y superficies definitivas surgirán del título de propiedad del inmueble referido.
119 entre 63 y 64, La Plata, La Plata
Qué ofrece este lugar
Alquiler Seguro mob
Contrato y firma 100% online.
Solicitud de visita
Envíamos tu consulta a la inmobiliaria.
Garantía con 50% off
Te verificás y accedés a garantía 50% off para cualquier alquiler.
Tus datos están protegidos por mob
MENACHO
Inmobiliaria recomendada
Esta inmobiliaria utiliza la infraestructura digital de mob para agilizar tu alquiler.













