Ambientes
3
Dormitorios
2
Sup. total
80 m²
Sup. cubierta
76 m²
Baños
2
Cocheras
1
Antigüedad
15 Años
Sobre esta propiedad
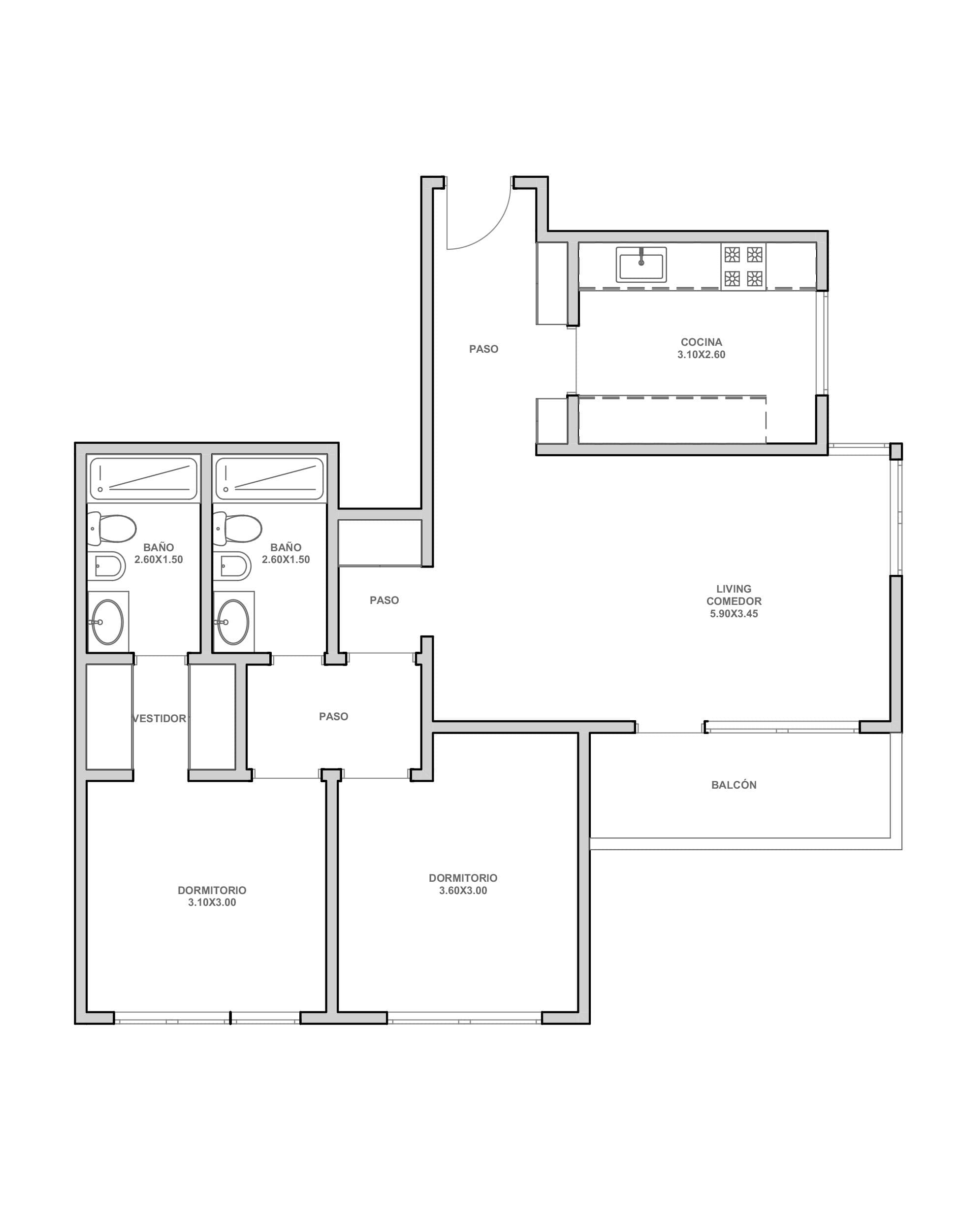
Departamento de 3 ambientes con cochera en Torre Mirabilia. Ingresamos al comedor y living, con amplios ventanales y salida a balcón aterrazado con espacio para mesa y sillas. Por ser un piso alto y amplios ventanales cuenta con excelente entrada de luz natural y vista al rio. Orientación SUR OESTE. Esta unidad cuenta con dos baños completos. Dormitorio principal en suite con baño completo y vestidor. Cocina independiente. Anafe y horno eléctricos. Calefacción por losa radiante. 1 cochera fija y cubierta. Amenities: Piscina olímpica descubierta climatizada y piscina cubierta climatizada / jacuzzi / sum / quincho con parrilla / sala de reuniones / gym / spa / cancha de tenis / cancha de fútbol 5 / kids club / juegos para niños.Servicios: Ascensores de última generación por torre / seguridad 24 hs con control de acceso / grupo electrógeno para áreas comunes / limpieza y mantenimiento de áreas comunes / laundry / agua caliente central / lavadero de autos / camara de seguridad con monitoreo 24hs / cocheras de cortesía.El edificio si es apto para personas con movilidad reducida.
Humboldt al 2000, Palermo Hollywood, Palermo
Qué ofrece este lugar
$600.000 expensas
Alquiler Seguro mob
Contrato y firma 100% online.
Solicitud de visita
Envíamos tu consulta a la inmobiliaria.
Garantía con 50% off
Te verificás y accedés a garantía 50% off para cualquier alquiler.
Tus datos están protegidos por mob
Braulio Inmuebles
Inmobiliaria recomendada
Esta inmobiliaria utiliza la infraestructura digital de mob para agilizar tu alquiler.
























